Форум «Auto-HiFi»Вернуться к списку тем
| Сообщение |
Автор |
|
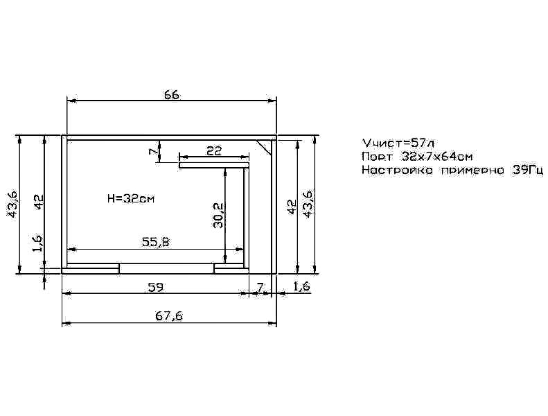
Какой лучше короб для ГЗ 30спл из ФИ? (приложение в виде чертежей)

WOOF-WOOF :)))
|
2012-10-12 15:05:24strangeelfСпециалистАдрес: АрмавирСообщений: 82
|
|
Я за ФИ..............
Да прибудет с нами сила.
|
2012-10-12 19:19:52den 5ВетеранАдрес: МоскваСообщений: 5680
|
|
ГЫЫЫ ))) Дык я тоже за фи )) Но за какой из трёх представленных выше ????
WOOF-WOOF :)))
|
2012-10-12 19:47:55strangeelfСпециалистАдрес: АрмавирСообщений: 82
|
|
ГЫЫЫ ))) Дык я тоже за фи )) Но за какой из трёх представленных выше ????
WOOF-WOOF :)))
|
2012-10-12 19:57:50strangeelfСпециалистАдрес: АрмавирСообщений: 82
|
|
Дайте реально провереный и хороший чертёжик короба для этого дина, плиззззз )))))))
WOOF-WOOF :)))
|
2012-10-12 19:59:16strangeelfСпециалистАдрес: АрмавирСообщений: 82
|
  Для того, чтобы оставлять сообщения на форуме пройдите регистрацию. Если вы зарегистрированы, то введите имя и пароль.
|
  
Мы в Telegram
Мы в ВКонтакте
Полная шумоизоляция Вашего автомобиля по специальной цене! При покупке акустики для штатных мест Mercedes - установка на интересных условиях! При покупке акустики для штатных мест BMW - установка на интересных условиях! Шумовиброизоляция четырех дверей в три слоя под ключ по интересной цене! Каждому покупателю акустики размера 16,5 см. дороже 10000 рублей проставочные кольца для установки в подарок! Каждый покупатель получает в подарок компакт-диск с клёвыми миксами от Mr. DJ Monj! Каждому покупателю фирменные рамки «Auto-HiFi» для государственных номерных знаков в подарок!
2025-11-19 Акустика Recoil: Recoil RLX352, Recoil RLX402, Recoil RLX462, Recoil RLX525, Recoil RLX572, Recoil RLX682, Recoil RLX693. 2025-11-18 Сабвуферы ACV: ACV N12-S1500 D2, ACV N12-S800 D4, ACV N15-S1500 D2. 2025-11-17 Акустика Recoil: Recoil LET1, Recoil RLM525. 2025-11-16 Сабвуферы DL Audio: DL Audio Raven 10 V.2, DL Audio Raven 12 V.2, DL Audio Raven 15 V.2, DL Audio Raven 18 V.2. 2025-11-15 Морская акустика Hertz : Hertz HEX 6.5 M-C-O, Hertz HEX 6.5 M-W-O. 2025-11-14 Процессоры звука Deaf Bonce: Deaf Bonce DB-10 DSP, Deaf Bonce DB-6 DSP.
Финал автозвуковых соревнований EMMA 2025 в Санкт-Петербург Финал EMMA 2024 Фоторепортаж с этапа автозвуковых соревнований EMMA в Санкт-Петербурге 22 июня 2024 года Фоторепортаж с этапа EMMA в Твери 1 июня 2024 года Финал автозвуковых соревнований EMMA 2023 года в Воронеже
4-канальный усилитель мощности Hellion HAM 150.4D Финал EMMA 2025 в Санкт Петербурге ESQL часть 1 Финал EMMA 2025 в Санкт Петербурге ESQL часть 2 Финал EMMA 2025 в Санкт Петербурге ESQL часть 3 Финал EMMA 2025 в Санкт Петербурге ESQL часть 4 Финал EMMA 2025 в Санкт Петербурге ESQL часть 5 Финал EMMA 2025 в Санкт Петербурге ESQL часть 6 Финал EMMA 2025 в Санкт Петербурге ESQL часть 7
Всем доброго вечера. Нужна помощь в выборе процессора и усителей. Начну издалека. Изначально в моем авто Hyundai Santa Fe tm была двухполо . . . . . Всем привет!
Нужен совет по подключению процессорного усилителя Усилитель Sennuopu X680 к голове Teyes CC3.
Я начитался, что есть 2 спос . . . . . Всем привет подскажите под MPS 250 подойдет усилитель Match UP 1FX будет ли нормально по громкости все работать чуть выше среднего ? Или . . . . . Здравствуйте. Подскажите, пожалуйста ,головное устройство с навигацией яндекс для киа оптима 2013. . . . . . Друзья, подскажите бесплатную программу на ноутбук для замера ачх с помощью микрофона.
Микрофон usb YANMAI sf-555b . . . . . Всем привет! Купил Ground Zero GZPC 165.3SQ-С ACT. К ним усилитель Alpine R-A90S. Процессор Madbit DSP pro2. Сабвуфер GZTW-12F. Усь к нем . . . . . Добрый день форумчане.
Приобрел Xcelsus audio XAS10.
Посоветуйте моноблок к нему чтобы сабик полностью раскрылся.
Желательно что нибу . . . . . Всем привет уважаемые форумчане
Прошу помощи по подбору мидбасов в авто лансер 9
Стоит процеусь sennuopu x12
3-ка+саб
Подключаться буд . . . . .
Автомагнитола Pioneer DEH-P88RS → Карозеррия 070 мне больше подошла по зауку . . . . . Усилитель Helix NEXT V TWO → Перешёл с eton ma2 на helix next v two. Eton ma2 выдавал небольшой , но слышимый . . . . . Усилитель Hellion HAM8.100DSP → Это самый оптимальный процессорный усилитель для создания автозвука среднего сег . . . . . Усилитель Mystery MK-4.80 → Лучший усилитель, цена-качество. Вы бы знали сколько перетерпел этот малыш. Кто . . . . . Акустика ESB Audio 5.028 → Порезал от 2000, ниже не стал пробовать.
Играет очень ровно, в любимых треках с . . . . . Автомагнитола Kenwood DPX206U → Вот уже почти 10 лет как мне подарили DPX206U, 300к пробега.
Лет 5 назад были к . . . . . Автомагнитола JVC KD-AVX44EE → Отве Володеньке, отзыв которого третий по счету. На дворе 2025 год, майфун проше . . . . . Акустика Eton RSC 165 → Очередные новые и качественные компоненты от Eton. Перешёл с Eton pro 16+. RSC с . . . . .
Автомагнитола JVC KW-R930BT в Toyota Caldina II Сабвуфер Alpine SWG-1044 в Haval H3 Усилитель Ural BV 1.800 в Haval H3 Усилитель Hellion HAM8.100DSP в Audi Q5 Сабвуфер Focal Sub 12 Dual в Lada Vesta
|